
近日,石龙镇中山路历史文化街区
保护提升项目迎来新进展
巡查巷市政工程沿江路堤外段已顺利完工
老城区沿江路堤外往石碣方向路段
正式恢复通行
与此同时
中山路主街也基本恢复路面通行

此外,堤内沿江路与红棉路
预计于春节前完成路面施工并恢复通行
届时中山路历史文化街区
周边交通网络将进一步畅通
市民春节出行更舒心、更便捷
靠谱的实盘配资平台
针对居民关心的市政工程细节,相关部门进行了详细解读。本次工程改造范围覆盖太平路、巡查巷、中山路(东、中、西路)及红棉路,内容包括街区内道路及人行道的雨、污、供水管规整,高压电缆迁建下地、供电设备迁改入户、通信管线整治、燃气管道新建铺设、道路路面铺装翻新等。工程完工后,街区市政基础设施承载能力将大幅提升,供水、供电、供气的安全性与稳定性进一步增强,周边居民的生活环境将得到质的改善。

△新建地下综合管线横断面示意图
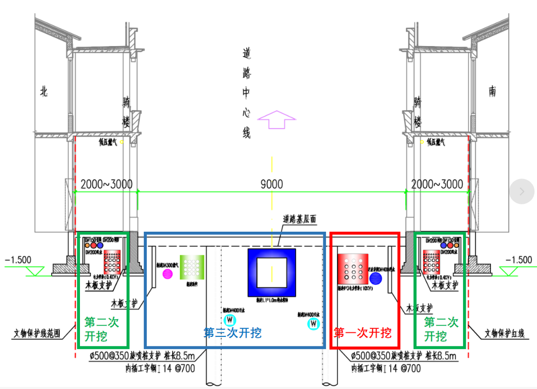
考虑到街区内居民与商户密集的实际情况,项目采用“民生优先、科学施工”的方案,最大限度降低施工对群众生活的影响。由于现状管线与新建管线多处重叠,同时要保障施工期间水电气网正常供应,施工方制定了针对性施工策略:中山路采用“分段分幅围蔽”模式,太平路因道路狭窄采用“分段全幅围蔽”施工,巡查巷则采用“全段全幅围蔽”施工。

△地下综合管线施工顺序示意图
作为石龙镇老城区的“心脏”,中山路历史文化街区承载着一代又一代石龙人的温情回忆,更以可触可感的烟火气与历史肌理成为石龙镇深厚历史文化底蕴的鲜活缩影。为守护好这份文化瑰宝,石龙镇积极谋划总投资5.5亿元的东莞市石龙镇中山路历史文化街区保护提升项目。项目以“有机微改造,渐进式更新”为原则,在保护骑楼建筑风貌与历史街巷肌理的基础上,全面升级市政设施,兼顾历史传承与民生需求。此次多条道路恢复通行,既是项目建设的阶段性成果,更是送给市民的“新春大礼”,助力大家在平安畅通的出行环境中感受老街年味与变迁。
接下来,石龙镇将持续统筹推进项目施工与民生保障工作,精准优化施工安排,畅通沟通渠道,同步优化春节期间交通保障措施,加大路面管控和便民服务力度,让市民游客在新春佳节既能感受中山路的魅力,又能享受安全便捷的出行服务,切实提升市民节日出行的幸福感与安全感。
工程整体施工计划详情
(一)2026年春节前
1、巡查巷对主道路实施围蔽,进行地下管线施工,预计2月12日西半幅恢复通车,东半幅因旧建筑拆除和人行道改造未完工,继续围蔽;
2、红棉路完成通信管、排水管、高压电线管、路面结构施工,预计2月10日恢复路面通车;
3、中山中路分段围蔽主道路,进行南侧支护桩施工,完成十字路口—东市场段高压电线管和主供水管埋设,目前已拆除围挡恢复通行;
4、中山东路分段围蔽新街口至面街口段主道路,开展南侧支护桩施工,目前也已拆除围挡恢复通行。

△春节期间中山东社区交通路线示意图

△春节期间中山西社区交通路线示意图
(二)2026年3月至9月
1、巡查巷、红棉路完成两侧人行道的地下管线埋设和人行道改造,完成红棉路路面沥青铺设。(预计2026年5月完成)
2、中山中路完成东市场—新街口南侧道路剩余的高压电线管、主供水管施工,完成两侧骑楼底低压电线管、消防水管的施工。(预计2026年7月完成)
3、中山东路分段围蔽面街口—石龙头主道路,向东推进南侧支护桩、高压电线管、主供水管的施工,完成两侧骑楼底低压电线管、消防水管的施工。(预计2026年7月完成)
4、中山西路分段围蔽主道路,进行南侧支护桩、高压电线管、主供水管的施工,同步开展两侧骑楼底低压电线管、消防水管的施工。(预计2026年9月完成)
5、太平路分段全幅围蔽,对主道路和人行道地下管线同步进行施工。(预计2026年10月完成)
(三)2026年10月至2027年9月
中山西路、中山中路、中山东路将分段围蔽道路中间区域,进行高压电塔电缆拆除、污水管、雨水箱涵、通信管、燃气管等地下管线的施工。地下管线施工完成后,将逐步对中山路、巡查巷、太平路的地面进行石材或沥青铺贴。
因工程施工场地复杂
施工难度较大,不确定性因素较多
具体分段围蔽位置、时间
将会按现场实际调整
交通流线也会随着围蔽方案的动态调整
而相应改变
后续项目现场指挥部
将在围蔽方案和交通流线发生重大变更时
提前向各位居民告知
在此,恳请各位居民
予以理解与支持



出品|石龙镇融媒体中心
资料来源|石龙镇中山路历史街区改造项目建设现场指挥部
文、编|叶嘉瑶
校对|卢引璋
值班编委|林秋江
审发|戴晓东
*任何媒体及微信公众号若要转载本文,应提前告知本号,获得授权后请清晰标注出处为微信号“宜居石龙”,否则一律举报抄袭并追究法律责任。


嘉正网提示:文章来自网络,不代表本站观点。